Budapest, district XX. Székelyhíd utca
Székelyhíd utca, 144 m2 detached house for sale
Two-storey property with versatile utilization options – ideal as a residential building or office
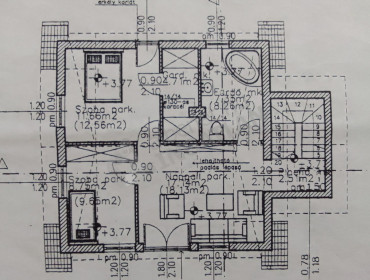
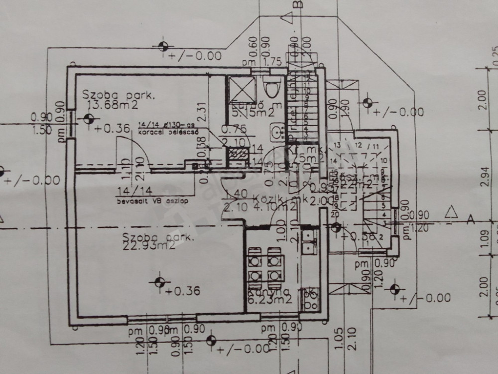
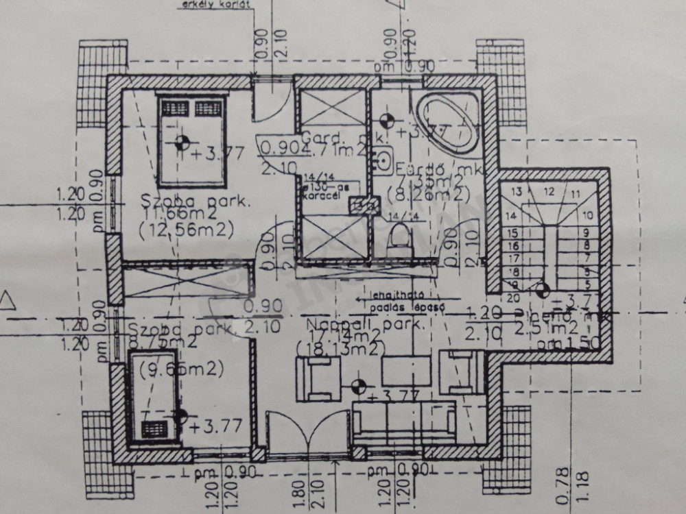
A two-storey, spacious building is for sale, which, thanks to its design, is suitable for the coexistence of several generations, as well as for work and office activities. Both floors have their own entrance and have separate kitchens, bathrooms, living rooms and bedrooms – so the floors can be used as completely independent living areas.
The property has a 15 m² basement room, which provides a suitable space for storage or the creation of a small workshop.
Additional facilities and equipment:
The 25 m² garage is paved and has a shower, toilet, boiler, and a heating circuit, so it can be easily converted into a living space, office or guest apartment.
Heating is provided by a gas boiler, and underfloor heating has been installed in several rooms, which provides a pleasant feeling of warmth.
All windows have aluminium shutters, which not only play a role in heat and sound insulation, but also provide extra protection.
A built-in water softener system reduces limescale build-up throughout the house, so home appliances last longer and are more economical to operate.
The attic is thermally insulated and equipped with windows in the inclined plane, so it can even be covered as an additional useful area.
The property is located in the suburban zone of the XX district of Budapest, in a quiet street. The calm environment and the proximity to the capital are a rare advantage. Shopping opportunities (e.g. Aldi) can be reached on foot in a few minutes, as well as educational institutions, bus stops and small shops.
A two-storey, spacious building is for sale, which, thanks to its design, is suitable for the coexistence of several generations, as well as for work and office activities. Both floors have their own entrance and have separate kitchens, bathrooms, living rooms and bedrooms – so the floors can be used as completely independent living areas.
The property has a 15 m² basement room, which provides a suitable space for storage or the creation of a small workshop.
Additional facilities and equipment:
The 25 m² garage is paved and has a shower, toilet, boiler, and a heating circuit, so it can be easily converted into a living space, office or guest apartment.
Heating is provided by a gas boiler, and underfloor heating has been installed in several rooms, which provides a pleasant feeling of warmth.
All windows have aluminium shutters, which not only play a role in heat and sound insulation, but also provide extra protection.
A built-in water softener system reduces limescale build-up throughout the house, so home appliances last longer and are more economical to operate.
The attic is thermally insulated and equipped with windows in the inclined plane, so it can even be covered as an additional useful area.
The property is located in the suburban zone of the XX district of Budapest, in a quiet street. The calm environment and the proximity to the capital are a rare advantage. Shopping opportunities (e.g. Aldi) can be reached on foot in a few minutes, as well as educational institutions, bus stops and small shops.
District XX
Settlement Budapest
Sub-district Kossuthfalva
Type Detached house
Rooms 5+1
Energiatanusítvány B
Balcony / Terrace 2 m2
Attic Beépített
Condition Average
Heating Boiler
View Garden
Parking Parking space
Bathrooms 2
Year of construction 1995




























