Budapest, district IX. Közraktár utca
Közraktár utca, 91 m2 brick flat for sale
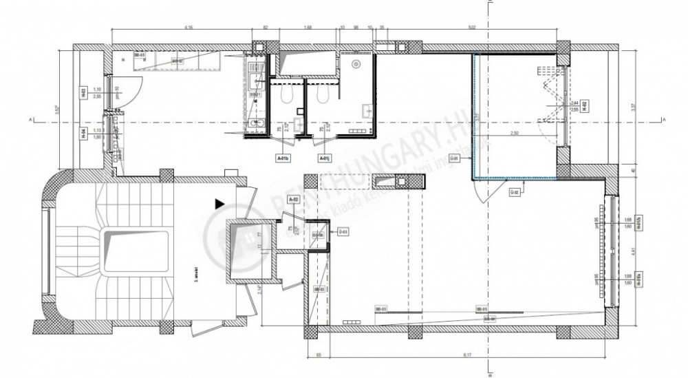
For sale in District IX: a RIVER DANUBE PANORAMA, three-room (88 m²) apartment with TWO BALCONIES (6 m²).
The property has been fully renovated with high-quality materials, both technically and aesthetically. It is currently designed as an open-plan space with a meeting area. Originally intended as an office, it is also perfect as a loft-style apartment or investment. The rooms can easily be partitioned if desired.
BUILDING FEATURES:
-Elevator
-Enclosed corridor-style staircase
-Panoramic Danube view
-Renovated building
APARTMENT FEATURES:
-Complete technical and aesthetic renovation (new concrete flooring, electrical and plumbing systems, new wooden windows)
-Air conditioning, humidity control, and ventilation system
-Unused since renovation
Parking: Street parking available with an annual permit.
Transport: Tram No. 2 and Metro line M4 nearby.
For further information, please contact me by phone.
The property has been fully renovated with high-quality materials, both technically and aesthetically. It is currently designed as an open-plan space with a meeting area. Originally intended as an office, it is also perfect as a loft-style apartment or investment. The rooms can easily be partitioned if desired.
BUILDING FEATURES:
-Elevator
-Enclosed corridor-style staircase
-Panoramic Danube view
-Renovated building
APARTMENT FEATURES:
-Complete technical and aesthetic renovation (new concrete flooring, electrical and plumbing systems, new wooden windows)
-Air conditioning, humidity control, and ventilation system
-Unused since renovation
Parking: Street parking available with an annual permit.
Transport: Tram No. 2 and Metro line M4 nearby.
For further information, please contact me by phone.
District IX
Settlement Budapest
Sub-district Belső-Ferencváros
Type Brick flat
Rooms 3
Balcony / Terrace 6 m2
Floor 3
Condition Renovated
Elevator Yes
Heating Central heating
View Danube
Orientation South-West
Parking Parking zone
Bathrooms 1
Bathroom / Toilet Separated
Air conditioned Yes
Common cost 41000 HUF/month
Shower / Bathtub Shower





















