Budapest, district VIII. Vajdahunyad utca
Vajdahunyad utca, 39 m2 brick flat for sale
Modern, newly built penthouse apartment with a spacious terrace for sale in the Corvin Quarter
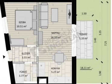
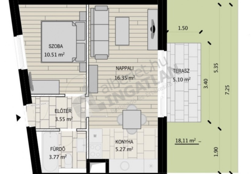
In the heart of the Corvin Quarter, on the top floor of an imposing, newly built condominium, we offer for sale a 39 m², bright and elegant apartment with a special 24 m² panoramic terrace. Thanks to the height of the building, the view is unobstructed and maintained in the long term.
The apartment is located just a few minutes' walk from the boulevard and the Corvin Plaza, so transport and services are easily accessible. The home has a modern layout and consists of a living room, a bedroom, a modern kitchen and a high-quality bathroom. The terrace can be used in several ways — it can even be used as a wellness area, a relaxation zone or a garden barbecue.
The condominium has a modern heat pump ceiling heating and cooling system and outstanding thermal insulation, which ensures low overhead costs. The property is also approved for short-term rental (Airbnb), making it an excellent choice for investment purposes.
The calm environment, modern technical solutions and the continuous development of the area guarantee that this property offers an outstanding opportunity not only as a home, but also as a value-stable investment.
In the heart of the Corvin Quarter, on the top floor of an imposing, newly built condominium, we offer for sale a 39 m², bright and elegant apartment with a special 24 m² panoramic terrace. Thanks to the height of the building, the view is unobstructed and maintained in the long term.
The apartment is located just a few minutes' walk from the boulevard and the Corvin Plaza, so transport and services are easily accessible. The home has a modern layout and consists of a living room, a bedroom, a modern kitchen and a high-quality bathroom. The terrace can be used in several ways — it can even be used as a wellness area, a relaxation zone or a garden barbecue.
The condominium has a modern heat pump ceiling heating and cooling system and outstanding thermal insulation, which ensures low overhead costs. The property is also approved for short-term rental (Airbnb), making it an excellent choice for investment purposes.
The calm environment, modern technical solutions and the continuous development of the area guarantee that this property offers an outstanding opportunity not only as a home, but also as a value-stable investment.
District VIII
Settlement Budapest
Sub-district Józsefváros - Corvinnegyed
Type Brick flat
Rooms 2
Energiatanusítvány A++
Floor 7
Elevator Yes
Heating Heat pump
View Panoramic
Parking Parking zone
Common cost 25000 HUF/month
Year of construction 2023



























